Trilocale in vendita

Venezia, Calle della Madonna - Cannaregio
€ 385.000
3 locali 3 locali
79 Mq 79 Mq
2 bagni 2 bagni

Trilocale in vendita

Venezia, Calle della Madonna - Cannaregio

Descrizione annuncio

CANNAREGIO

Proponiamo in vendita un appartamento di circa 79 mq, inserito in un contesto tranquillo e riservato, in posizione particolarmente strategica grazie all’eccellente accessibilità. Numerose zone di Venezia sono infatti facilmente raggiungibili sia a piedi sia tramite i principali mezzi di trasporto pubblico.

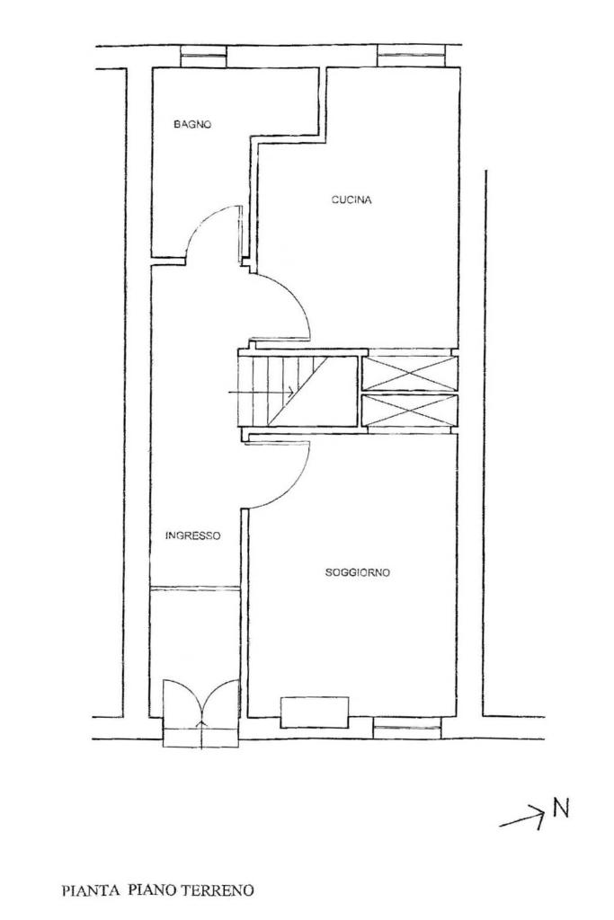
L’immobile si sviluppa su due livelli, al piano terra l’ingresso introduce a un comodo corridoio che distribuisce in modo funzionale la zona giorno, composta da soggiorno, cucina separata e bagno. Salendo al primo piano si accede alla zona notte, dove trovano spazio due camere da letto, entrambe dotate di bagno privato, garantendo un elevato livello di comfort e privacy.

La posizione rappresenta uno dei principali punti di forza dell’appartamento. A pochi minuti da Strada Nuova, l’immobile è circondato da tutti i servizi essenziali come bar, ristoranti, scuole, università, supermercati e strutture sportive. Ulteriore valore aggiunto è la vicinanza ai mezzi di trasporto pubblico, facilmente raggiungibili a piedi e ideali per collegare rapidamente l’intera città e le isole della laguna. La prossimità alla stazione ferroviaria e a Piazzale Roma rende la soluzione particolarmente comoda e versatile.

Un aspetto distintivo di questa abitazione è la presenza di fosse settiche, un vantaggio significativo per chi intende destinare l'immobile a locazioni turistiche, data la crescente richiesta di alloggi in questa zona storica. Cannaregio, con i suoi canali pittoreschi e le calli caratteristiche, offre un contesto unico, ricco di storia e cultura, perfetto per chi cerca un investimento o una residenza in una delle città più affascinanti del mondo.

Mostra tutto

Nelle vicinanze

Trasporto pubblico Trasporto pubblico
stazione di Venezia Santa Lucia
stazione di Venezia Santa Lucia
510 m
Piazzale Roma
Piazzale Roma
890 m
Libertà Santa Chiara
Libertà Santa Chiara
710 m
Venezia A1
Venezia A1
840 m
Crea
80 m
Ricariche auto elettriche Ricariche auto elettriche
Blitz Exclusive SRL
810 m
Scuole Scuole
ITT F. Algarotti Sez. Palazzo Testa
140 m
IPSS Vendramin Corner Succ. Palazzo Testa
150 m
Istituto delle Suore Maestre di Santa Dorotea
230 m
ITT Francesco Algarotti
250 m
Scuola dell'Infanzia San Girolamo
270 m
Farmacia Farmacia
Farmacia alle due Sirene
300 m
Farmacia Salvadori
430 m
Farmacia Santa Lucia
440 m
Farmacia Checchia
600 m
Farmacia Ai Due Ombrelli
600 m
Ospedali Ospedali
Istituto Ospedaliero Fatebenefratelli
690 m
Ospedale Giustinian
1,6 Km
Ospedale Santi Giovanni e Paolo
1,8 Km
Supermercati Supermercati
Conad City
360 m
Despar
430 m
Dolce Bianchi Venezia
500 m
Ballarin Paolo E C. S.N.C.
550 m
Supermercato SISA
610 m
Negozi Negozi
Negozi
190 m
Panificio Volpe Giovanni
300 m
Majer Venezia
320 m
Pasticceria
330 m
Tezenis
360 m
Bar Bar
MQ10
70 m
Al Parlamento
100 m
The Mask Lounge Bar
130 m
al cicheto
360 m
Irish Pub Santa Lucia
360 m
Ristoranti Ristoranti
Agli Archi
50 m
Very Good
60 m
Al Tre Archi
70 m
Ogio
100 m
Trattoria Dalla Marisa
150 m
Mostra tutto

Caratteristiche

Rif.:
61169099
Piano:
2 di 2 (Piano su più livelli)
Camere da letto:
2
Arredamento:
Parziale
Condizionamento:
Autonomo
Ascensore:
No
Mostra tutto
Prezzo Prezzo
€ 385.000
Rata mutuo Rata mutuo
€ 1.798 / mese
Spese annue Spese annue
€ 0
Proponi il tuo prezzoProponi il tuo prezzo
Immobile valutato con T·Valuta

Altre caratteristiche

Classe Energetica

F
F
F
F
F
F
F
F
F
Anno di costruzione:
1900
Riscaldamento:
Autonomo
Tipo impianto:
A radiatori
Tipo alimentazione:
Metano

Ti interessa visionare l'immobile?

Fissa un appuntamento  Fissa un appuntamento

Richiedi informazioni

Clicca su Leggi per aprire l'informativa
* Questi campi sono obbligatori

Calcola il tuo mutuo

Semplice e senza impegno
Anticipo

( % )
Mutuo

( % )

pochi semplici passi

inserisci i tuoi dati
Questionario completato
Grazie per aver richiesto un appuntamento senza impegno con un nostro Consulente del Credito e Assicurativo.

Hai inserito correttamente tutti i dati necessari e a breve riceverai una e-mail con un link da convalidare per inviare i tuoi dati.
Affiliato
Veni Etiam Sas
Via Sestiere Castello, 5756 30124 Venezia (VE)

Il nostro staff


  • Marco Carminati
    Affiliato
Via Sestiere Castello, 5756 30124 Venezia (VE)
Zona: Venezia San Marco-Castello
Mostra su mappa
Affiliato
Veni Etiam Sas
Via Sestiere Castello, 5756 30124 Venezia (VE)

2026 Tecnocasa Franchising S.p.A. - P. IVA 08365160152 - Via Monte Bianco 60/A 20089 Rozzano (MI). Ogni agenzia ha un proprio titolare ed è autonoma. Privacy policy | Policy utilizzo | Cookie policy