Bilocale in vendita

Venezia, Calle de la Malvasia - Cannaregio
€ 345.000
Prezzo aggiornato
50 Mq 50 Mq
1 bagno 1 bagno

Bilocale in vendita

Venezia, Calle de la Malvasia - Cannaregio

Descrizione annuncio

CANNAREGIO

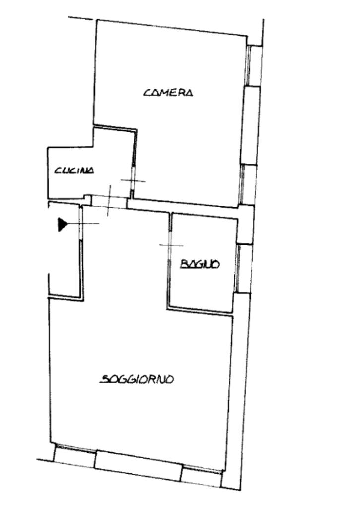
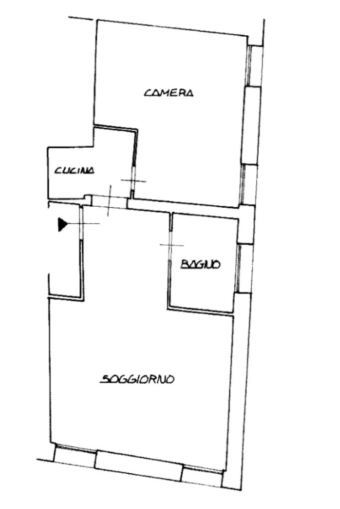
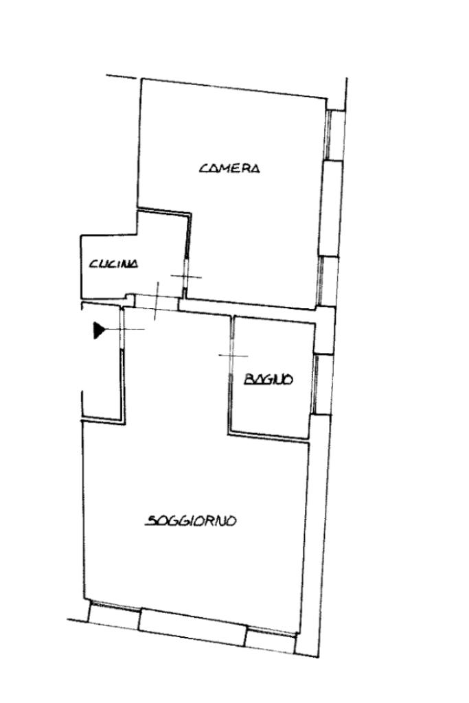
Proponiamo in vendita un accogliente appartamento di circa 50 mq, caratterizzato da una distribuzione funzionale degli spazi interni. L’ingresso conduce a un luminoso soggiorno, ambiente principale della casa, ideale per momenti di relax. La zona notte è composta da una confortevole camera da letto matrimoniale, mentre il cucinotto separato garantisce praticità e ordine. Completa la proprietà un bagno finestrato, che assicura luce naturale e ottima ventilazione. Inoltre è dotato di travi a vista che rendono l'abitazione piu bella.

L’immobile, ristrutturato nei primi anni 2000, è situato al primo piano e gode di una posizione strategica in una zona centrale e particolarmente apprezzata. La collocazione consente di raggiungere comodamente ogni punto della città, grazie alla vicinanza alla stazione ferroviaria e a Piazzale Roma, entrambi a quindici minuti a piedi. L’area è inoltre ottimamente servita dai mezzi pubblici, rendendo la soluzione ideale sia come abitazione principale sia come importante vantaggio è la presenza di fosse settiche, che garantiscono una gestione efficiente delle acque reflue, un aspetto non trascurabile nel contesto veneziano.

Da sottolineare il valore della zona, particolarmente piacevole e vivace: nelle immediate vicinanze sono presenti numerosi bar e ristoranti che animano il quartiere soprattutto nelle ore serali. Allo stesso tempo, l’area offre tutti i principali servizi di prima necessità, come supermercati, farmacie e negozi di quartiere, comodamente raggiungibili a piedi, garantendo così un’elevata qualità della vita quotidiana.

L’appartamento è attualmente locato con regolare contratto di affitto 4+4.

Mostra tutto

Nelle vicinanze

Trasporto pubblico Trasporto pubblico
stazione di Venezia Santa Lucia
stazione di Venezia Santa Lucia
800 m
Piazzale Roma
Piazzale Roma
1,2 Km
Venezia A1
Venezia A1
1,1 Km
Venezia A2
Venezia A2
1,1 Km
San Alvise
300 m
Ricariche auto elettriche Ricariche auto elettriche
Blitz Exclusive SRL
1,2 Km
Scuole Scuole
Istituto delle Suore Maestre di Santa Dorotea
270 m
Scuola dell'Infanzia San Girolamo
350 m
ITT Francesco Algarotti
390 m
IPSS Vendramin Corner Succ. Palazzo Testa
430 m
ITT F. Algarotti Sez. Palazzo Testa
440 m
Farmacia Farmacia
Farmacia
140 m
Farmacia Checchia
260 m
Farmacia Salvadori
290 m
Farmacia alle due Sirene
340 m
Speziera all'Ercole d'Oro
490 m
Ospedali Ospedali
Istituto Ospedaliero Fatebenefratelli
210 m
Ospedale Santi Giovanni e Paolo
1,3 Km
Ospedale Giustinian
1,7 Km
Supermercati Supermercati
Supermercato SISA
120 m
Despar - Teatro Italia
220 m
Prix
230 m
Coop
260 m
Ballarin Paolo E C. S.N.C.
270 m
Negozi Negozi
Negozi
120 m
Majer Venezia
230 m
Superzoom
270 m
Panificio Volpe Giovanni
290 m
Iodonna
290 m
Bar Bar
Al Timon
60 m
Birreria Zanon
70 m
Ae Bricoe
100 m
Osteria Al Mariner
110 m
Bar Froggy
120 m
Ristoranti Ristoranti
Anice Stellato
40 m
Ai 40 Ladroni
40 m
Trattoria all Antica Mola
60 m
Pizza Da Zorma
80 m
birreria is zanon
80 m
Mostra tutto

Caratteristiche

Rif.:
61164492
Piano:
1 di 1 (Piano medio)
Camere da letto:
1
Arredamento:
Parziale
Condizionamento:
Autonomo
Ascensore:
No
Mostra tutto
Prezzo Prezzo
€ 345.000
Rata mutuo Rata mutuo
€ 1.611 / mese
Spese annue Spese annue
€ 0
Proponi il tuo prezzoProponi il tuo prezzo
Immobile valutato con T·Valuta

Classe Energetica

F
F
F
F
F
F
F
F
F
EP globale non rinnovabile:
199.66 kW h/m² anno
EP globale rinnovabile:
76.88 kW h/m² anno
EP invernale del fabbricato:
EP estiva del fabbricato:
Anno di costruzione:
1800
Riscaldamento:
Autonomo
Tipo impianto:
A radiatori
Tipo alimentazione:
Metano

Prezzo ridotto di €1 (6%%)

Ti interessa visionare l'immobile?

Fissa un appuntamento  Fissa un appuntamento

Richiedi informazioni

Clicca su Leggi per aprire l'informativa
* Questi campi sono obbligatori

Calcola il tuo mutuo

Semplice e senza impegno
Anticipo

( % )
Mutuo

( % )

pochi semplici passi

inserisci i tuoi dati
Questionario completato
Grazie per aver richiesto un appuntamento senza impegno con un nostro Consulente del Credito e Assicurativo.

Hai inserito correttamente tutti i dati necessari e a breve riceverai una e-mail con un link da convalidare per inviare i tuoi dati.
Affiliato
Veni Etiam Sas
Via Sestiere Castello, 5756 30124 Venezia (VE)

Il nostro staff


  • Marco Carminati
    Affiliato
Via Sestiere Castello, 5756 30124 Venezia (VE)
Zona: Venezia San Marco-Castello
Mostra su mappa
Affiliato
Veni Etiam Sas
Via Sestiere Castello, 5756 30124 Venezia (VE)

2026 Tecnocasa Franchising S.p.A. - P. IVA 08365160152 - Via Monte Bianco 60/A 20089 Rozzano (MI). Ogni agenzia ha un proprio titolare ed è autonoma. Privacy policy | Policy utilizzo | Cookie policy