5 locali in vendita

Venezia, Fondamenta dei arsenalotti - Castello
€ 860.000
4 locali 4 locali
140 Mq 140 Mq
1 bagno 1 bagno

5 locali in vendita

Venezia, Fondamenta dei arsenalotti - Castello

Descrizione annuncio

CASTELLO

Proponiamo in vendita un elegante appartamento situato in una zona residenziale di prestigio, caratterizzata da tranquillità e scarso afflusso turistico.

L’immobile è ideale per chi desidera ambienti silenziosi, ampi, luminosi e ariosi, impreziositi da altezze interne di ben 4 metri. Situato in un palazzo storico servito da ascensore, offre una splendida corte condominiale e affascinanti scale a chiocciola in stile 'a bovolo'. Un ulteriore punto di forza è la vista aperta, che dona respiro e luce agli spazi.

L’appartamento si trova a soli 5 minuti a piedi da San Zaccaria, in una posizione strategica ben collegata grazie alla presenza di imbarcaderi nelle vicinanze, ideali per raggiungere comodamente ogni zona di Venezia. La zona è ben servita da negozi di prima necessità, come supermercati e farmacie, oltre a numerosi ristoranti e caffè che rendono l’area vivace e piacevole da vivere.

L’immobile, da ristrutturare, è tutelato dalle Belle Arti, un elemento che ne conferma il valore storico e architettonico e offre l’occasione di un recupero conservativo di grande prestigio.

Perfetto per chi desidera investire in un appartamento di charme, situato in una zona comoda e ben collegata, ideale anche per chi cerca relax e tranquillità lontano dal caos cittadino.

Mostra tutto

Nelle vicinanze

Trasporto pubblico Trasporto pubblico
stazione di Venezia Santa Lucia
stazione di Venezia Santa Lucia
2,4 Km
Piazzale Roma
Piazzale Roma
2,4 Km
Ple Santa Maria Elisabetta (SME 2)
Ple Santa Maria Elisabetta (SME 2)
2,4 Km
Ple Santa Maria Elisabetta (SME 1)
Ple Santa Maria Elisabetta (SME 1)
2,4 Km
Arsenale
170 m
Ricariche auto elettriche Ricariche auto elettriche
Blitz Exclusive SRL
2,5 Km
Ausonia Hungaria
2,7 Km
Scuole Scuole
Università degli Studi di Venezia, Facoltà di Scienze Matematiche-Fisiche-Naturali
430 m
Liceo Scientifico “Gian Battista Benedetti” Liceo Linguistico e delle Scienze Umane “Niccolò Tommaseo” Plesso Martinengo
480 m
Scuola Elementare Armando Diaz
520 m
Liceo Scientifico "Benedetti" e Linguistico "Tommaseo"
540 m
Istituto Tecnico Commerciale "Paolo Sarpi"
600 m
Farmacia Farmacia
Prodet
250 m
Farmacia Baldisserotto Antonia
310 m
Croce di Malta
340 m
Farmacia Dottore Polito
350 m
Farmacia al Lupo Coronato
630 m
Ospedali Ospedali
Ospedale Santi Giovanni e Paolo
850 m
Ospedale Giustinian
2,1 Km
Istituto Ospedaliero Fatebenefratelli
2,1 Km
Supermercati Supermercati
Supermercato Venezia Garibaldi
360 m
Coop
370 m
Punto Simply
430 m
Despar
850 m
Supermercati
890 m
Negozi Negozi
Negozi
80 m
Punto Casa
270 m
Nuna Lie
280 m
Banco No. 10
290 m
Panificio Padoan
360 m
Bar Bar
Alla Bragora
240 m
Bar
250 m
Strani
310 m
El Refolo
320 m
Cicchetteria A la scoela
350 m
Ristoranti Ristoranti
San Giorgio
120 m
Alla Tana
120 m
Carpaccio
140 m
Al Vecio Portal
140 m
Gabrielli
150 m
Mostra tutto

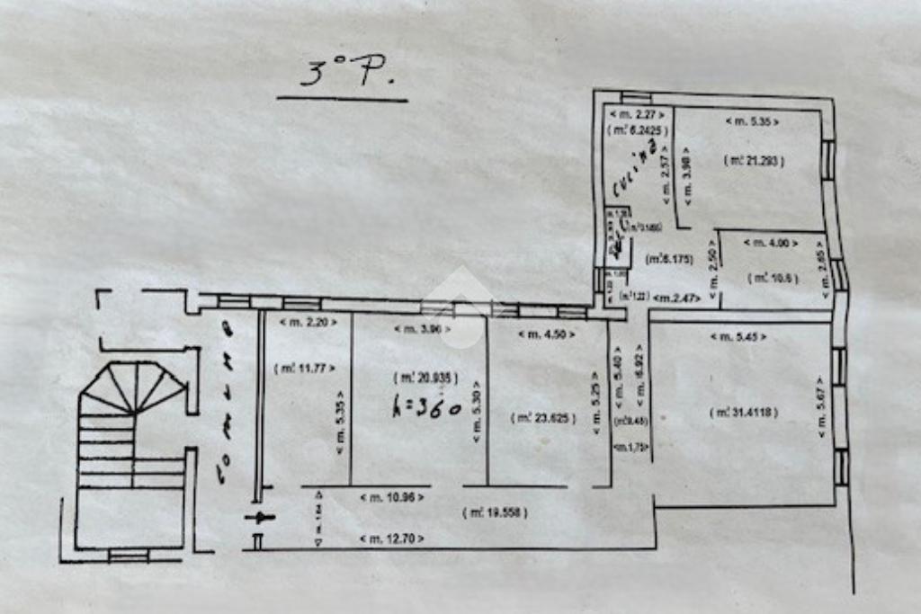
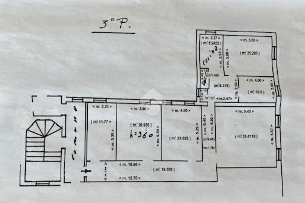
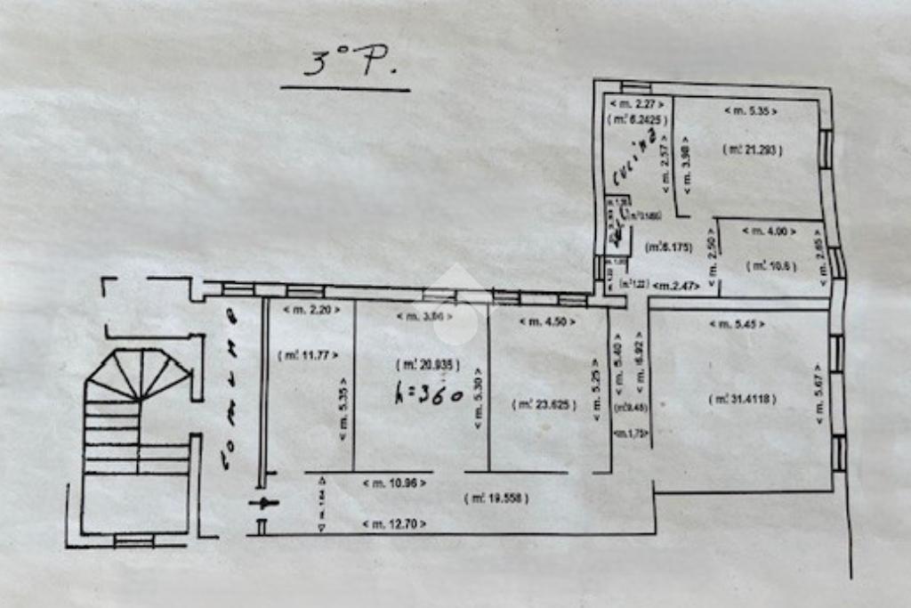
Caratteristiche

Rif.:
61122370
Piano:
3 di 4 con ascensore (Piano alto)
Camere da letto:
3
Arredamento:
Assente
Condizionamento:
Assente
Ascensore:
Mostra tutto
Prezzo Prezzo
€ 860.000
Rata mutuo Rata mutuo
€ 4.052 / mese
Spese annue Spese annue
€ 0
Proponi il tuo prezzoProponi il tuo prezzo

Altre caratteristiche

Classe Energetica

G
G
G
G
G
G
G
G
G
EP globale non rinnovabile:
185.00 kW h/m² anno
EP globale rinnovabile:
150.00 kW h/m² anno
EP invernale del fabbricato:
EP estiva del fabbricato:
Anno di costruzione:
1500
Riscaldamento:
Autonomo
Tipo impianto:
A radiatori
Tipo alimentazione:
Metano

Ti interessa visionare l'immobile?

Fissa un appuntamento  Fissa un appuntamento

Richiedi informazioni

Clicca su Leggi per aprire l'informativa
* Questi campi sono obbligatori

Calcola il tuo mutuo

Semplice e senza impegno
Anticipo

( % )
Mutuo

( % )

pochi semplici passi

inserisci i tuoi dati
Questionario completato
Grazie per aver richiesto un appuntamento senza impegno con un nostro Consulente del Credito e Assicurativo.

Hai inserito correttamente tutti i dati necessari e a breve riceverai una e-mail con un link da convalidare per inviare i tuoi dati.
Affiliato
Veni Etiam Sas
Via Sestiere Castello, 5756 30124 Venezia (VE)

Il nostro staff


  • Marco Carminati
    Affiliato
Via Sestiere Castello, 5756 30124 Venezia (VE)
Zona: Venezia San Marco-Castello
Mostra su mappa
Affiliato
Veni Etiam Sas
Via Sestiere Castello, 5756 30124 Venezia (VE)

2026 Tecnocasa Franchising S.p.A. - P. IVA 08365160152 - Via Monte Bianco 60/A 20089 Rozzano (MI). Ogni agenzia ha un proprio titolare ed è autonoma. Privacy policy | Policy utilizzo | Cookie policy