Quadrilocale in vendita

Venezia, Calle S. Zorzi - San Marco
€ 670.000
3 locali 3 locali
185 Mq 185 Mq
2 bagni 2 bagni

Quadrilocale in vendita

Venezia, Calle S. Zorzi - San Marco

Descrizione annuncio

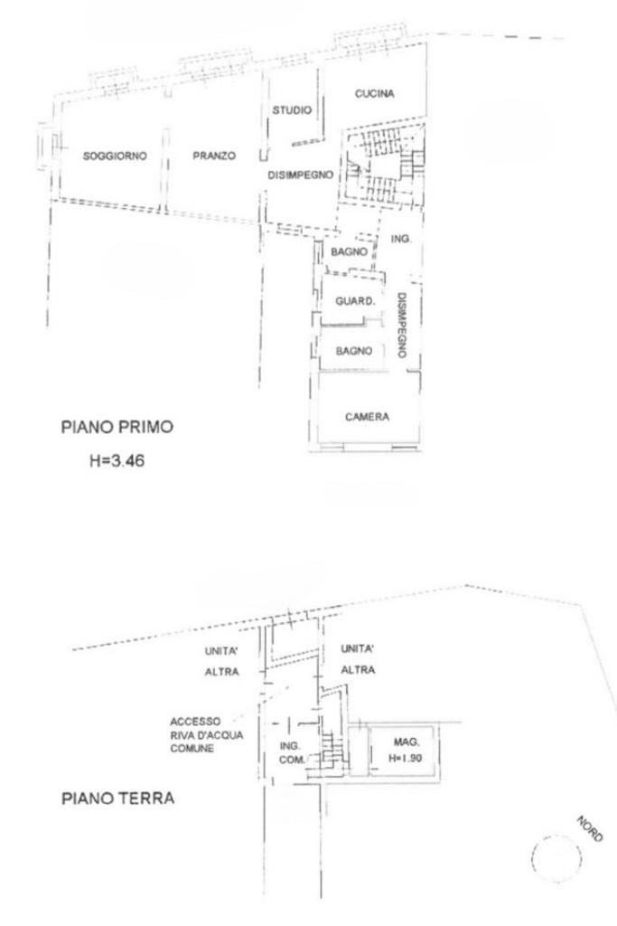
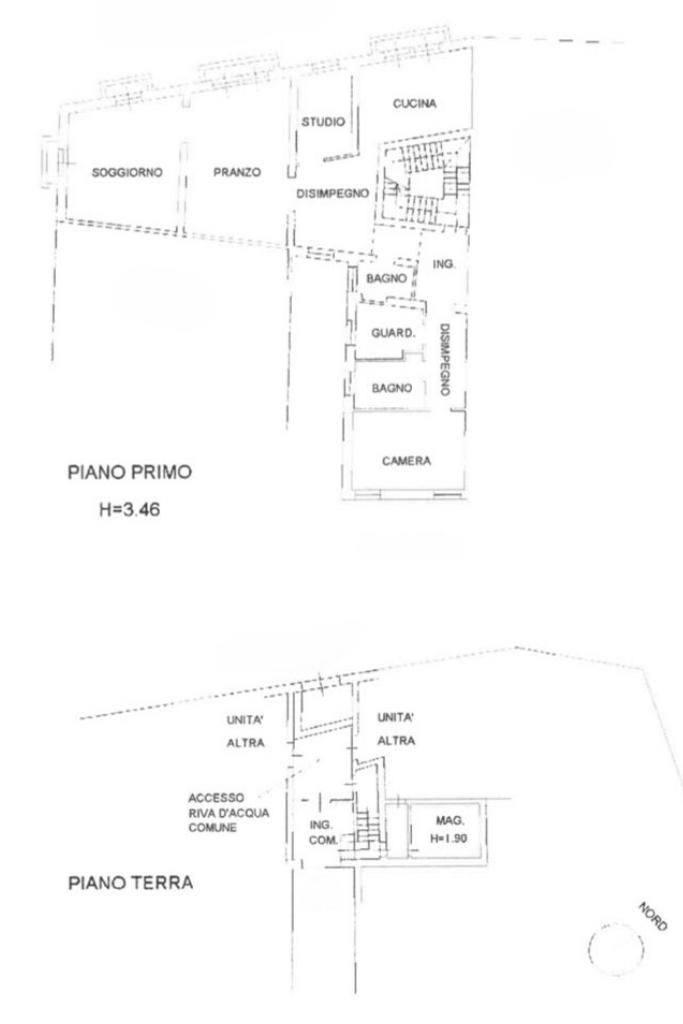
SESTIERE SAN MARCO - BACINO ORSEOLO

Proponiamo in vendita la nuda proprietà di un appartamento signorile, di pregio, situato in zona Bacino Orseolo, Il bacino, per la sua posizione immediatamente a ridosso di Piazza San Marco, rappresenta tutt'oggi uno dei luoghi più caratteristici della città ed uno dei più sfruttati imbarcaderi per le gite turistiche in gondola. Inoltre l'appartamento dista solo cinque minuti dall'imbarcadero di Rialto e dall'imbarcadero di San marco, offre inoltre altri servizi nelle immediate vicinanze come la farmacia a meno di 300 metri e il supermercato senza ponti dall'entrata dell'immobile.

L'appartamento è caratterizzato da quattro balconi e dodici finestre che rendono l'immobile luminoso; ed è esposto sul canale, da due lati. E' collocato al primo piano, è composto da una zona soggiorno e pranzo di 60 metri quadri circa, continuando troviamo la cucina abitabile, c'è la possibilità di arrivare ad avere fino a quattro camere da letto ed ha due bagni.

E' dotato di un magazzino al piano terra di circa 15 metri quadri, il condominio è in ottimo stato di manutenzione, è stato ristrutturato internamente ed esternamente nel 2000, ed ha una porta ad acqua condominiale.

Mostra tutto

Nelle vicinanze

Trasporto pubblico Trasporto pubblico
stazione di Venezia Santa Lucia
stazione di Venezia Santa Lucia
1,4 Km
Piazzale Roma
Piazzale Roma
1,4 Km
Venezia B1
Venezia B1
1,4 Km
Venezia B2
Venezia B2
1,4 Km
San Marco Giardinetti
250 m
Ricariche auto elettriche Ricariche auto elettriche
Blitz Exclusive SRL
1,5 Km
Scuole Scuole
Ca' Cappello
540 m
Scuola Elementare Armando Diaz
560 m
Istituto Comprensivo Statale San Girolamo - Scuola Primaria Statale "Giacinto Gallina"
700 m
Istituto Professionale Andrea Barbarigo
710 m
I.S.I.S. Barbarigo
730 m
Farmacia Farmacia
Farmacia
20 m
Farmacia Internazionale
180 m
Alla Vecchia e al Cedro Imperiale
210 m
Farmacia Italo Inglese
230 m
Farmacia Morelli
370 m
Ospedali Ospedali
Ospedale Santi Giovanni e Paolo
870 m
Ospedale Giustinian
1,1 Km
Istituto Ospedaliero Fatebenefratelli
1,5 Km
Supermercati Supermercati
Cuore Bio
130 m
Punto Simply
270 m
Despar
290 m
Supermercati
370 m
Coop
390 m
Negozi Negozi
Ermenegildo Zegna
70 m
Carpisa
100 m
Hermes
110 m
Fratelli Rossetti
110 m
Dior
110 m
Bar Bar
Mio
20 m
Snack-Bar da Piero
100 m
Black-Jack
180 m
Alla Città di Torino
210 m
Bar Ducale
290 m
Ristoranti Ristoranti
Chat Qui Rit
20 m
Hard Rock Cafe
40 m
Osteria San Marco
40 m
Basara Milano Sushi Bar
60 m
Osteria da Carla
70 m
Mostra tutto

Caratteristiche

Rif.:
60994602
Piano:
1 di 4 (Piano medio)
Balconi:
4
Camere da letto:
4
Arredamento:
Parziale
Condizionamento:
Autonomo
Mostra tutto
Prezzo Prezzo
€ 670.000
Rata mutuo Rata mutuo
€ 3.157 / mese
Proponi il tuo prezzoProponi il tuo prezzo

Altre caratteristiche

Classe Energetica

Questo immobile è esente da classe energetica
Anno di costruzione:
1500
Riscaldamento:
Autonomo
Tipo impianto:
A radiatori
Tipo alimentazione:
Altro

Ti interessa visionare l'immobile?

Fissa un appuntamento  Fissa un appuntamento

Richiedi informazioni

Clicca su Leggi per aprire l'informativa
* Questi campi sono obbligatori

Calcola il tuo mutuo

Semplice e senza impegno
Anticipo

( % )
Mutuo

( % )

pochi semplici passi

inserisci i tuoi dati
Questionario completato
Grazie per aver richiesto un appuntamento senza impegno con un nostro Consulente del Credito e Assicurativo.

Hai inserito correttamente tutti i dati necessari e a breve riceverai una e-mail con un link da convalidare per inviare i tuoi dati.
Affiliato
Veni Etiam Sas
Via Sestiere Castello, 5756 30124 Venezia (VE)

Il nostro staff


  • Marco Carminati
    Affiliato
Via Sestiere Castello, 5756 30124 Venezia (VE)
Zona: Venezia San Marco-Castello
Mostra su mappa
Affiliato
Veni Etiam Sas
Via Sestiere Castello, 5756 30124 Venezia (VE)

2026 Tecnocasa Franchising S.p.A. - P. IVA 08365160152 - Via Monte Bianco 60/A 20089 Rozzano (MI). Ogni agenzia ha un proprio titolare ed è autonoma. Privacy policy | Policy utilizzo | Cookie policy